
© Studio Ten 谭啸
NASA在2020年在南极进行宇宙射线探测时发现了证明平行宇宙存在的证据。科学家们观测到了一种名为「涛微中子」的基本粒子从地球「上升」,这表明这些粒子的行为与通常认知的相反。这一发现引发了对平行世界和时间关系的深入探讨,尤其是与130亿年前的宇宙大爆炸相关的平行世界,可能存在着逆行和颠倒扭曲的关系。
NASA discovered evidence of the existence of parallel universes during its cosmic ray exploration in Antarctica in 2020. Scientists have observed a fundamental particle called "Tao neutrino" rising from Earth, indicating that the behavior of these particles is opposite to what is commonly known. This discovery has sparked a deeper exploration of the relationship between parallel worlds and time, especially those related to the Big Bang 13 billion years ago, which may have a retrograde and inverted twisted relationship.
——————
项目名称:成都Luxemporium概念店设计
设计方:All Design Studio
项目地址:成都市科华中路9号王府井百货1层L01023
建筑面积:2060㎡
成都 Luxemporium 概念店
Chengdu Luxemporium Concept Store
---
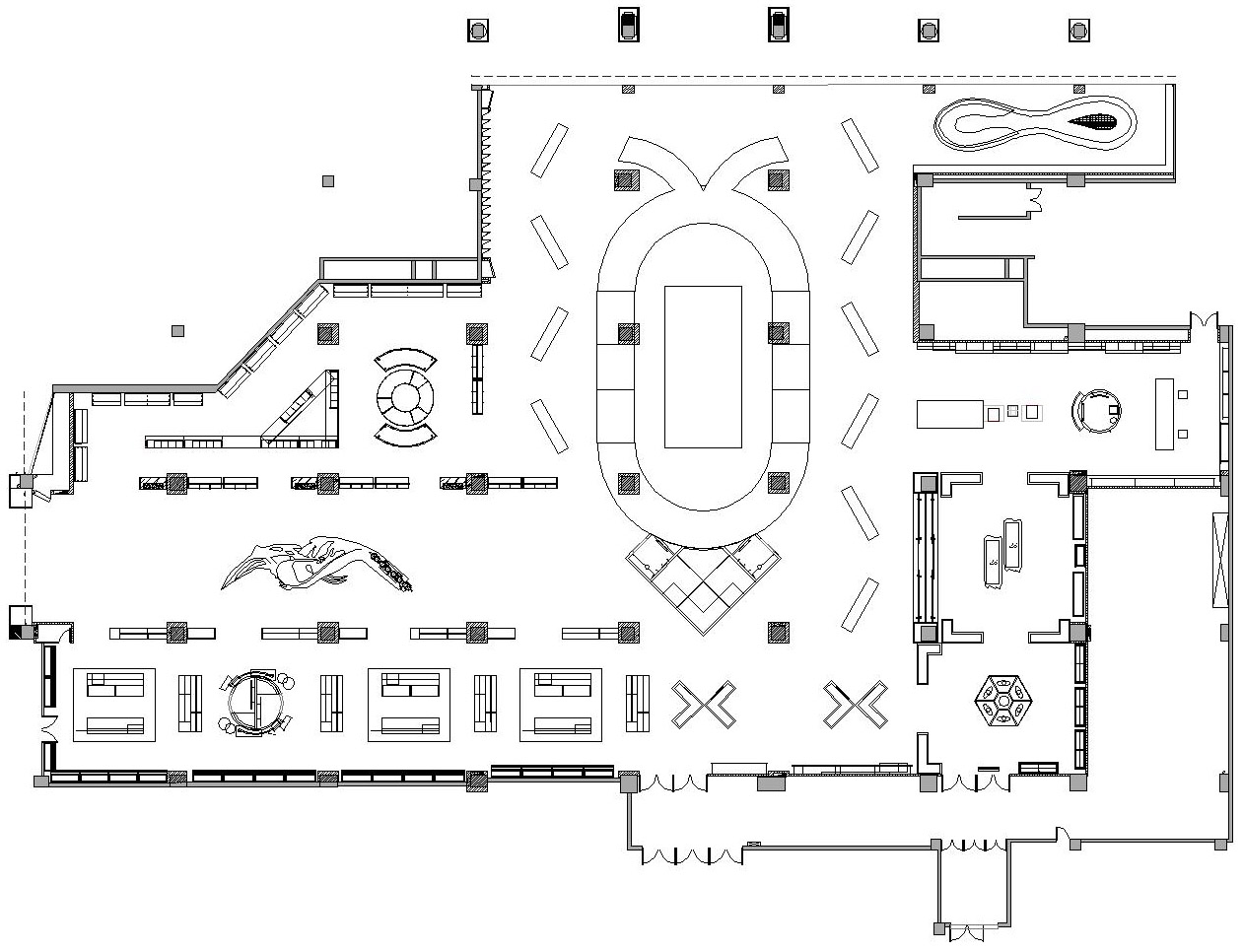
一个名为Desfa Group的设计团队受到了这一发现的启发,在为Stella设计的创意中心中将平行世界的概念融入到设计中。他们将平行世界分为四个层面:纬度平行、材质与颜色的平行、记忆平行和镜面平行,并将这些概念融入到不同的空间设计中,包括入口区域、太空飞船展示区、鞋包区、服装区、羽绒和牛仔区以及时间机器的3D打印装置。
A design team called Desfa Group was inspired by this discovery and incorporated the concept of parallel worlds into their design for Stella's creative center. They divided the parallel world into four levels: latitude parallel, material and color parallel, memory parallel, and mirror parallel, and integrated these concepts into different spatial designs, including entrance areas, spacecraft display areas, shoe and bag areas, clothing areas, down and denim areas, and 3D printing installations for time machines.

© Studio Ten 谭啸

© Studio Ten 谭啸

© Studio Ten 谭啸

© Studio Ten 谭啸

© Studio Ten 谭啸

© Studio Ten 谭啸

© Studio Ten 谭啸

© Studio Ten 谭啸

© Studio Ten 谭啸

© Studio Ten 谭啸

© Studio Ten 谭啸

© Studio Ten 谭啸

© Studio Ten 谭啸
设计师利用各种材质、颜色和装置,营造出一个充满科幻色彩和奥秘感的创意中心空间。他们的设计旨在让人们感受到时尚世界的新与旧、交错与轮回,同时展现出时间与空间的无限可能性。这个创意中心不仅是一个产品开发和生产的地方,更是一个引人入胜、充满创意和想象力的庇护所,为Stella品牌的设计和创作提供了灵感和动力。
Designers use various materials, colors, and installations to create a creative center space full of sci-fi colors and mystery. Their design aims to make people feel the new and old, intertwining and reincarnation of the fashion world, while showcasing the infinite possibilities of time and space. This creative center is not only a place for product development and production, but also a fascinating, creative, and imaginative sanctuary that provides inspiration and motivation for the design and creation of the Stella brand.

© Studio Ten 谭啸

© Studio Ten 谭啸

© Studio Ten 谭啸

© Studio Ten 谭啸

© Studio Ten 谭啸

© Studio Ten 谭啸

© Studio Ten 谭啸

项目信息
项目名称:成都Luxemporium概念店设计
设计方:All Design Studio
项目设计&完成年份:2020
主创及设计团队:梁亮,陈宏威,李亢骋
项目地址:成都市科华中路9号王府井百货1层L01023
建筑面积:2060㎡
摄影版权:Studio Ten 谭啸
摄像师:HUASHENGSTUDIO
客户:睿锦尚品国际贸易(上海)有限公司
施工方: 上海普宏建设工程有限公司
3D装置: Steven Ma
3D 装置施工:Xuberance
版权©策站网cezn.cn,欢迎转发,禁止以策站编辑版本进行任何形式转载