
©陈铭
本能特性远比刻意创造的个性重要。— N.J.哈勃瑞肯
这个项目对于艺术教育的态度非常清晰,而且充满了对孩子们本能特性的尊重。首先,业主提出不要童趣,而是要专业教育机构形象,这表明他们希望打造一个高端、专业的艺术培训机构,强调学术性和专业性。其次,业主要求空间设计必须以孩子的感受出发,这体现了对孩子们天性和舒适感的重视,希望创造一个与传统教学环境不同的、更加活泼和开放的学习空间。最后,业主要求艺术中心必须作为一个艺术空间存在于这座城市,这意味着他们希望这个艺术中心不仅是一个教育机构,更是一个文化地标,为城市的艺术生活做出贡献。
Instinctive traits are far more important than deliberately created personalities N. J. Hubble Ricken
This project has a very clear attitude towards art education and is full of respect for children's instinctive characteristics. Firstly, the owners propose not to be childish, but to have a professional image as an educational institution, indicating their desire to create a high-end and professional art training institution that emphasizes academic and professional qualities. Secondly, the owner requires that the space design must be based on children's feelings, which reflects the importance placed on children's nature and comfort. They hope to create a more lively and open learning space that is different from traditional teaching environments. Finally, the owners require that the art center must exist in this city as an art space, which means they hope that this art center is not only an educational institution, but also a cultural landmark that contributes to the city's artistic life.
——————
项目开发商:保利发展保利和乐教育
作品名称:保利和乐国际艺术中心
设计单位:PONE ARCHITECTURE
项目总控:梁穗明
保利和乐国际艺术中心
Poly Hele International Art Center
---
这些要求反映了业主对于艺术教育的深刻理解和独特见解,他们希望通过这个项目提供一个既专业又富有活力、引人入胜的艺术学习环境,激发孩子们的创造力和表现力,同时为城市的文化建设做出积极贡献。
These requirements reflect the owner's profound understanding and unique insights into art education. They hope to provide a professional, dynamic, and engaging art learning environment through this project, stimulate children's creativity and expression, and make positive contributions to the cultural construction of the city.

©陈铭
“调皮的泡泡圈”——我们的目标是用儿童的想象力打造一个化学艺术的乐园。这个艺术中心以孩子们最初的线条探索方式为灵感,以调皮的圈圈为秩序,打造简洁的空间,并设置直观简单的环形路线。孩子们可以通过曲折的视觉探索空间,线条的运动激发了他们对艺术的兴趣和好奇心。我们希望这个艺术中心在功能上是一个教育场所,在精神上则是一处让心灵宁静的窗口。
The mischievous bubble circle - Our goal is to create a chemical art paradise with children's imagination. This art center is inspired by children's initial line exploration methods, with mischievous circles as the order, creating a simple space and setting up intuitive and simple circular routes. Children can explore space through intricate visual experiences, and the movement of lines stimulates their interest and curiosity in art. We hope that this art center is both an educational venue in terms of functionality and a window for spiritual tranquility.


在入口处的8米高空间,我们打造了一种充满仪式感的体验,让人们进入艺术中心时仿佛踏入了一个神圣的教学空间。这个空间以其静谧的特质而著称,在光线的照耀下,它触动着每一个心灵。
At the entrance of the 8-meter high space, we create a ceremonial experience that makes people feel as if they have stepped into a sacred teaching space when entering the art center. This space is known for its tranquil qualities, and under the illumination of light, it touches every soul.

©陈铭

©陈铭

©陈铭

©陈铭

©陈铭
通过空间设计,我们希望激活孩子们与生俱来的艺术感知,将艺术融入他们的生活中。每一个角落都是一个教育的启发,让孩子们在探索中学习、成长。从简洁的线条到温暖的光影,每一个细节都在引导他们发现美的力量,激发他们的创造力和想象力。这个空间不仅是一个艺术中心,更是一个教育的殿堂,让孩子们在玩乐中获得知识,培养对艺术的热爱和理解。
Through spatial design, we hope to activate children's innate artistic perception and integrate art into their lives. Every corner is an educational inspiration, allowing children to learn and grow through exploration. From simple lines to warm light and shadow, every detail guides them to discover the power of beauty, inspiring their creativity and imagination. This space is not only an art center, but also an educational hall, allowing children to gain knowledge and cultivate a love and understanding of art through play.

©陈铭

©陈铭
在我们的艺术中心,课室不再受限于关闭的门,而是处处都是舞台。公共空间的聚合充满趣味,它们可以是一堂体验课的场所,也可以是一场迷你音乐会的舞台。我们特意在反圈小世界设置了公共区域和个人空间,让每个人都能够尽情释放自我,无所顾忌地享受艺术的魅力。这样的设计不仅创造了多样化的学习和表演场所,也让每个人都能够在这个空间里找到属于自己的位置和情感共鸣。
In our art center, classrooms are no longer limited by closed doors, but are filled with stages everywhere. The aggregation of public spaces is full of fun, they can be places for experiential classes or stages for mini concerts. We have specially set up public areas and personal spaces in the anti circle small world, allowing everyone to freely release themselves and enjoy the charm of art without any worries. This design not only creates diverse learning and performance venues, but also allows everyone to find their own place and emotional resonance in this space.

©陈铭

©陈铭

©陈铭
我们的课室设计遵循着和谐的人性尺度,避免了过大或过小的空间尺度,以免让学生感到畏惧或压抑。我们采用了多功能可变的家具组合,这样的设计不仅可以创造更多种教学模式,还能够激活孩子们对艺术的兴趣和好奇心。学生们可以根据需要随意移动和组合家具,打造出适合他们学习和探索的空间。这样的设计不仅能够提升学习的效率,还能够增加学习的乐趣,让孩子们更加愿意参与到艺术教育中来。
Our classroom design follows a harmonious human scale, avoiding too large or too small spatial scales to prevent students from feeling intimidated or oppressed. We have adopted a multifunctional and variable furniture combination, which not only creates a variety of teaching modes but also stimulates children's interest and curiosity in art. Students can freely move and combine furniture according to their needs, creating a space suitable for their learning and exploration. This design can not only improve learning efficiency, but also increase the fun of learning, making children more willing to participate in art education.

©陈铭

©陈铭

©陈铭

©陈铭

©陈铭

©陈铭
我们采用大面积的光膜来设计光线,以柔和的照明功能为舞者们创造出最美、最自信的表现空间。这种设计使舞者的轮廓线条得以清晰呈现,让他们在舞台上展现出最佳的姿态和表现力。人与空间的艺术相互融合,创造出一种仿佛诗歌般的宁静氛围。在这样的环境里,舞者们能够更好地沉浸在艺术的表达中,展现出他们的才华和魅力,同时也让观众们沉浸在美妙的艺术氛围中,体验到心灵的愉悦和满足。
We use a large area of light film to design lighting, creating the most beautiful and confident performance space for dancers with soft lighting functions. This design allows the dancers to have clear contours and lines, allowing them to showcase their best posture and expressiveness on stage. The fusion of human and spatial art creates a serene atmosphere reminiscent of poetry. In such an environment, dancers can better immerse themselves in artistic expression, showcase their talents and charm, and also immerse the audience in a wonderful artistic atmosphere, experiencing spiritual pleasure and satisfaction.

©陈铭

©陈铭
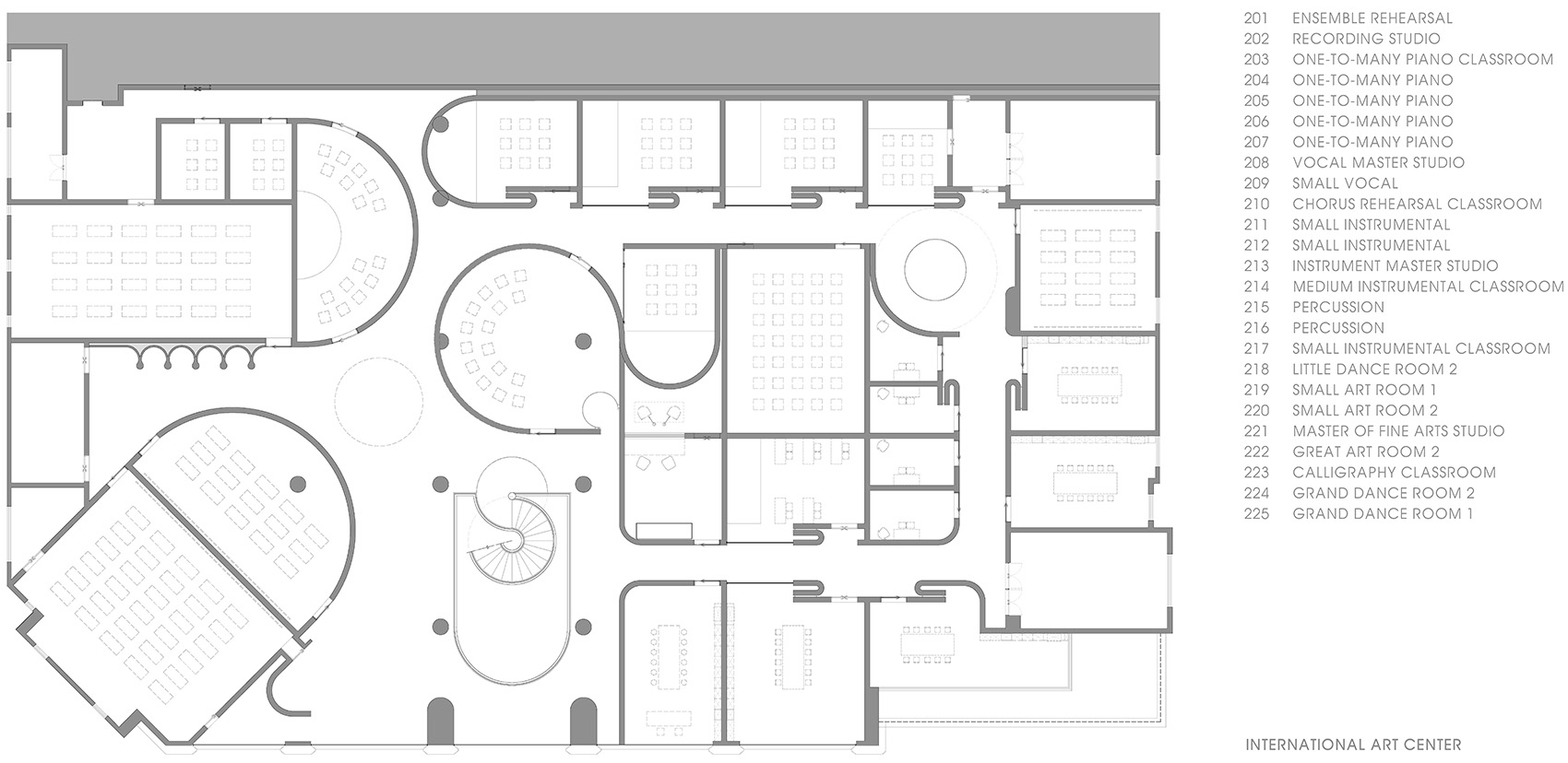
根据功能需要,我们对声量分贝进行了调整,并递进地安排了课室团组。在首层,入口左侧是小剧场,它独立分布,既有独立方位,又有散场人流的空间。中间是舞蹈课室团组,而最深入内部则是安静的小课室团组。
而在二层,沿窗边自然光最充足的是美术课室,中间是乐器教室的组团和一对一钢琴室,而最深入的课室则是带有专业隔音系统的声乐教室团组。
我们运用了孩童最早期麻线团绘画的方式来设计课室平面,让孩子们通过弯曲的视觉探索空间。空间的线性运动不仅启发了他们的灵感,也激发了他们对艺术的兴趣与好奇心。这样的设计不仅提供了功能性的课室安排,还为孩子们创造了一个富有创造力和想象力的学习环境。
According to functional requirements, we have adjusted the volume decibels and arranged classroom groups in a progressive manner. On the first floor, to the left of the entrance is a small theater, which is independently distributed and has both independent directions and space for the flow of people after the event. In the middle is the dance classroom group, while the deepest inside is the quiet small classroom group.
On the second floor, the art classroom has the most abundant natural light along the window, with a group of instrument classrooms and one-on-one piano rooms in the middle. The deepest classroom is a group of vocal classrooms with professional sound insulation systems.
We used the earliest method of drawing with a ball of hemp thread for children to design the classroom floor plan, allowing children to explore space through curved vision. The linear motion of space not only inspired them, but also aroused their interest and curiosity in art. This design not only provides functional classroom arrangements, but also creates a creative and imaginative learning environment for children.

艺术是与生俱来的权利,不受边界限制。在我们的环境设计中,我们提供了更多的舞台和场所,旨在激励和激活每个人内在的艺术潜能。孩子们在自由的环境中形成自己的规则,在有趣的空间里体验学习的乐趣。
Art is an innate right that is not limited by boundaries. In our environmental design, we provide more stages and venues aimed at inspiring and activating everyone's inner artistic potential. Children form their own rules in a free environment and experience the joy of learning in interesting spaces.

©陈铭

©陈铭




项目信息
项目开发商:保利发展保利和乐教育
作品名称:保利和乐国际艺术中心
设计单位:PONE ARCHITECTURE
项目总控:梁穗明
主笔设计:梁穗明
设计总监:何思玮
设计团队:罗品勇·李炜龙·华月柳·江键韵·洪俊能· 陈远淼·林晓亮
助理设计:黄朗平·陈炜婷·赖宇霖
行政执行:邓平好·刘亚平
品牌策划:梁嘉茜.·龚婉仪
项目摄影:陈铭
影视制作:东晴 SAPLINGFILM
案例面积:项目总面积:5435㎡
首层面积:2235㎡ 层高 3.4m
二层面积:3200㎡ 层高 2.8m
设计时间:2017年
建成时间:2018年
建成地点:武汉
版权©策站网cezn.cn,欢迎转发,禁止以策站编辑版本进行任何形式转载